Aufgabe III: Wohnkonzepte und Gebäudestrukturen
Hinweis: In der Prüfung erhältst du zwei Aufgaben, von denen du dir eine aussuchen und bearbeiten darfst.
I. Gegenstand der Aufgabe
Le Corbusier (1887–1965)
Wohngebäude „Clarté“, 1930–1932
Abb. 1–17
Genf, Schweiz
(„Clarté“ [frz.]: Klarheit)
50,4 m Länge x 23,5 m Breite, ca. 32 m Gesamthöhe
10-geschossiges Wohnhaus
50 Wohneinheiten
Stahlskelettbau
II. Arbeitsauftrag
Erschließe das Wohngebäude „Clarté“ anhand der vorliegenden Abbildungen.
III. Bewertung
Die Aufgabe stellt eine Gesamtheit dar und wird mit maximal 15 NP bewertet.
IV. Hinweise zur Bearbeitung der Aufgabe
-
Formuliere deine Ausführungen in einem zusammenhängenden Text.
-
Achte auf Gliederung und sprachlich angemessene Form.
-
Belege deine Aussagen anhand der Abbildungen.
-
Für die Beurteilung ist die Reinschrift maßgeblich.
Weiter lernen mit SchulLV-PLUS!
monatlich kündbarSchulLV-PLUS-Vorteile im ÜberblickDu hast bereits einen Account?
Abb. 1: Wohnhaus „Clarté“, Nordseite mit Eingängen

Abb. 2: Eingang, Nordseite

Abb. 3: Garagen, Südseite

Abb. 4: Baukonstruktion

Abb. 5: Stirnseite

Abb. 6: Eingang

Abb. 7: Foyer

Abb. 8: Belichtung Treppenhaus

Abb. 9: Treppenhaus

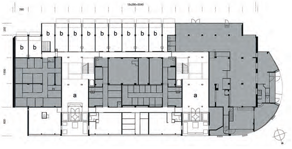
Abb. 10: Grundriss EG (a: Eingang/Foyer, b: Garagen. Funktionsräume [z. B. Technik/Keller/Ladenzeile] sind grau hinterlegt)

Abb. 11: Grundriss 2. OG und 3. OG. Wohnungserschließung im 2. OG farbig markiert: 2 Maisonettewohnungen (gelb und orange); 2 Appartements (rosa und türkis)



Abb. 12, 13, 14: Innenaufnahmen 3-Zimmer-Maisonettewohnung (in Abb. 11 orange hinterlegt)

Abb. 15: Schnitt

Abb. 16: 9. OG

Abb. 17: Dachterrasse, 9. OG
Abbildungsnachweis
Abb. 1: Zugriff am 01.01.2026
Abb. 2, 3, 6, 8, 10, 11, 15, 16: Office du patrimoine et des sites: Le Corbusier & Pierre Jeanneret - Restauration de lÍmmeuble Clarté, Genève, Basel: Birkhäuser Verlag, 2016, S. 119, 141, 2, 129, 65, 66, 67, 90, 9 (zum Teil zu Prüfungszwecken bearbeitet)
Abb. 4: Zugriff am 01.01.2026
Abb. 5, 12, 13, 14: Sumi, Christian: Immeuble Clarté Genf 1932, Zürich: Ammann Verlag, 1989, S. 72, 80, 81, 45
Abb. 7: Zugriff am 01.01.2026
Abb. 9: Zugriff am 01.01.2026
Abb. 17: Zugriff am 01.01.2026
Weiter lernen mit SchulLV-PLUS!
monatlich kündbarSchulLV-PLUS-Vorteile im ÜberblickDu hast bereits einen Account?Intention der Aufgabe
Das Wohngebäude „Clarté“ (auch „Haus Klarheit“ genannt) wurde von Le Corbusier und Pierre Jeanneret 1930 für den Bauunternehmer Edmond Wanner geplant und 1932 fertiggestellt. Hier zeigt sich in besonderer Weise wie die standardisierte Großwohneinheit vielfältige Einzelwohnungstypen in sich beherbergt. Das 1927 in fünf Punkten formulierte System der neuen Architektur bildet die Grundlage des Gebäudes.
Zugänge, Bearbeitungsmöglichkeiten und Ergebnisse
Das hohe und langgezogene Wohngebäude Clarté wirkt trotz seiner blockhaften Form leicht und transparent. Die auf den ersten Blick erkennbaren Wohngeschosse sind durch die sichtbare Stahlkonstruktion horizontal und vertikal gleichmäßig strukturiert. In jedem zweiten Geschoss betonen durchlaufende Balkone die Längsausrichtung und rhythmisieren die starre Fassadengliederung. Vollflächig breiten sich die Fenster bodentief aus, reflektieren das Licht und die Umgebung. Holzrollläden an der Außenfassade bilden einen farbigen Kontrast zum grauen Stahl und den Fenstern, sie beleben spielerisch das vorgegebene Raster und ergeben zufällige Variationen. Manche verlaufen über ein Stockwerk, andere können zwei Stockwerke verdunkeln. Schon hier ergibt sich ein Hinweis auf die innere Raumorganisation. Die beiden oberen Stockwerke sind treppenartig zurückgesetzt und gipfeln in einem schmalen, farbig abgesetzten Gebäudeaufsatz mit gewölbtem Dach. Assoziationen an einen Ozeandampfer sind nicht zufällig.
An die Stahl-Glas-Konstruktion ist im Erdgeschoss ein breiter Betonsockel angebaut, wodurch sich im 1. OG vor den Wohnungen eine Freifläche ergibt. Durch einen der beiden markanten Zugänge gelangt man in die dahinterliegende Gebäudehälfte: An der Fassade des Sockelgeschosses entlangkommend öffnet sich der Eingangsbereich gleich eines rechteckigen Rahmens über zwei Stockwerke. So werden die Bewohner geschützt durch eine Art Windfang zum gläsernen Übergang in den Innenraum geführt. Glasbausteine und die seegrüne Deckengestaltung sorgen für Leichtigkeit und Transparenz. Sie lockern die Schwere des Betons auf. Der gleiche Farbton findet sich an den Garagen der Gebäuderückseite und markiert ebenfalls den Übergang von der Straße zum Gebäudeinneren. Durch jede Garage hat man einen privaten Zugang zum Foyer. Analog zur Vorderseite ist dieser untere Teil aus dem Volumen des Hauptkörpers nach vorne gesetzt und ermöglicht ebenfalls eine Freifläche für die Bewohnerinnen und Bewohner des 1. OGs. Die Fassade gibt durch ihre Rasterung das zugrundeliegende Stahlskelett preis.
Der Gebäuderiegel besteht aus einer normierten Stahlstützenkonstruktion, deren Zwischenräume die freie gläserne Fassadengestaltung und eine freie Grundrissgestaltung ermöglichen. An den Stirnseiten befinden sich durchgängige Betonwände. Glasbausteinflächen wechseln mit Fensterflächen, lockern die Betonwand der Stirnseite auf und sorgen im Inneren für indirekte und direkte Belichtung. An der Stirnseite bildet der Betonsockel im Erdgeschoss durch seine geschwungene Form einen harmonischen Übergang zwischen gebogener Straßenführung und aufstrebendem Wohnblock und führt zu den beiden repräsentativen Eingängen. Zwei hintereinanderliegende Glastüren schleusen in den hallenartigen Eingangsbereich, von welchem man die Funktionsräume/Garagen und das Treppenhaus erreicht. Die vollflächige Verglasung des Eingangs in Kombination mit Glasbausteinwänden sorgen auch hier für Helligkeit im tiefliegenden Eingangsbereich. Stahlstützen vergegenwärtigen die Stützkonstruktion des Gebäudes, im Treppenhaus werden die profilierten Stahlträger ebenfalls sichtbar gelassen und mit der Metallkonstruktion der Treppen durch das ganze Haus in die Höhe weitergeführt. Glasbausteine führen das Licht von oben über die Bodenelemente, Treppenstufen und -podeste in die Tiefe des Treppenhauses hinein. Eine vertikale Lichtleiste mit unverkleideten Glühbirnen ergänzt die natürliche Lichtführung. Die hellblauen und beigen Wandflächen sorgen für eine freundliche Atmosphäre, das sichtbare Metall, gepaart mit dem minimalistischen Belichtungskonzept, zeigt beispielhaft den Stil des neuen Bauens. Zwei Treppenhäuser erschließen das in den weiterführenden Stockwerken symmetrisch angelegte Wohngebäude in der Vertikalen. Unterschiedliche Wohnungstypen erschließen sich den Bewohnern in der Horizontalen. Beispielsweise ist das 2. OG wie ein ‚Vierspänner‘ angelegt: Zwei Appartements (4-Zimmer und 1-Zimmer) sowie zwei Maisonettewohnungen (8-Zimmer und 3-Zimmer) werden erschlossen. Im 3. OG liegt dementsprechend ein ‚Zweispänner‘ vor. Die 8-Zimmer-Maisonettewohnung und das 4-Zimmer-Appartement nutzen die gesamte Gebäudetiefe, während die 3-Zimmer-Maisonettewohnung und das 1-Zimmer-Appartement nach einer Himmelsrichtung ausgerichtet sind.
Die Innenaufnahmen aus den 3-Zimmer-Maisonettewohnungen zeigen das offene Wohnkonzept mit der über zwei Etagen verlaufenden Glasfront, an der sich direkt der Wohn-/Essbereich anschließt. Durch den aus der Galeriesituation entstandenen Luftraum erhält er seinen großzügigen Charakter. Demgegenüber stehen effizient genutzte Flächen, wie ein kleines angrenzendes Zimmer, ein schmaler Flur mit Toilette und eine platzsparende Wendeltreppe. Im oberen Bereich führt diese zu einem kleinen Bad, dem offenen Galeriebereich und einem weiteren Zimmer. Trotz der aus heutiger Sicht geringen Grundfläche erleben die Bewohner durch die großzügige Verglasung und Raumhöhe eine optische Raumöffnung und Weite.
Alternierend wechseln sich die durchgehenden Balkone an der Süd- und Nordfassade ab. Sie dienen auch zur Verschattung der darunterliegenden Wohnungen (brise-soleil). Zusätzlich werden Markisen als Sonnenschutz eingesetzt. Nicht alle Wohneinheiten (z. B.: 2. OG, 1-Zimmer-Appartement) besitzen einen Balkon. Die beiden obersten Balkonreihen sind leicht zurückversetzt und leiten zum Gebäudeabschluss über. Ab dem 8. OG ist der Versatz deutlich wahrnehmbar. Diese Wohneinheit ist als letzte Einheit über das Treppenhaus zu erreichen, die Nutzung der Dachterrasse bleibt somit ausschließlich den Bewohnerinnen und Bewohnern der obersten Etage vorbehalten. Der Mittelbau des 9. OGs greift die Farbe des Erdgeschoßes erneut auf und erinnert mit seiner gebogenen Dachform, dem relingartigen Geländer und den Schornsteinen an einen Ozeandampfer. Der umlaufende Gang führt in beide Richtungen zu zwei großzügigen Dachterrassen, von denen aus man einen weiten Blick über die Stadt und den Genfer See hat. Während die Nutzung der Dachterrassen hier noch wenigen möglich ist, öffnet Le Corbusier in späteren Bauten die Dachgärten für alle Bewohner. Das fast hundert Jahre alte Bauwerk strahlt auch heute noch eine zeitlose Eleganz aus und wird durch die klare Linienführung der Glas-Stahl-Fassade ihrem Namen in besonderer Weise gerecht. Die radikale Entscheidung zur Verwendung der Stahlkonstruktion und der sich ergebenden flexiblen Grundrissgestaltung atmet noch den Geist des Aufbruchs zum modernen Wohnungsbau.